BLACK FRIDAY! - uplatňujte slevy až 25 % na vybrané výrobky. Více info ZDE. + při nákupu nad 2 000 Kč balíková přeprava DPD po celé ČR ZDARMA.

Geberit Duofix Předstěnová instalace pro závěsné WC, výška 1,12 m

skladem novinka
0 hodnocení
  
Geberit Duofix Předstěnová instalace pro závěsné WC, výška 1,12 m

Fotografie produktů slouží pouze k ilustrativním účelům.


Doprava ZDARMA
Zboží ze stejné kategorie:
 

Výrobce / Série:
Katalogové číslo / Produkt:
458.103.00.2 / 458103002
EAN:
4064746032363
Záruka:
2 roky
Dostupnost:

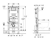
Montážní prvek pro závěsné WC Duofix, se splachovací nádržkou pod omítku Delta 12 cm, pro zabudování do předstěnové instalace na částečnou nebo celou výšku místnosti před masivní stěnou nebo stěnou prováděnou suchým procesem, pro ovládání pomocí Geberit ovládacích tlačítek Delta.   Více informací

Kdy zboží dostanu?
Doprava zdarma

7 369 Kč
3 762 Kč s DPH
3 109,10 Kč bez DPH

Související kategorie

Popis produktu

UPOZORNĚNÍ: Montážní prvek kat. číslo 458.103.00.2 nahrazuje starší typ produktu, kat. číslo 458.103.00.1

Montážní prvek Duofix pro závěsné WC se splachovací nádržkou pod omítku Delta 12 cm

Účel použití

  • pro zabudování do předstěnové instalace na částečnou nebo celou výšku místnosti před masivní stěnou nebo stěnou prováděnou suchým procesem
  • pro tloušťku podlahy 0 - 20 cm
  • pro ovládání zepředu
  • pro ovládání pomocí Geberit ovládacích tlačítek Delta
  • pro připojení Geberit AquaClean
  • nevhodný pro zabetonování

Vlastnosti

  • geberit Delta splachovací nádržka pod omítku 12 cm (UP100), ovládání zepředu
  • samonosný rám s nanesenou práškovou barvou
  • rám pro nástěnné WC s připojovacími rozměry dle EN 33 a přesahem do 62 cm
  • alternativní montážní poloha pro nástěnné kotvy
  • podpěry pozinkované
  • hloubka základní desky vhodná pro instalaci do U-profilů UW 50
  • připojovací koleno lze namontovat bez použití nářadí
  • splachovací nádržka pod omítku izolovaná proti orosování
  • pro 1-činné, 2 -činné nebo Start/Stop splachování
  • u nastavení z výroby je možné okamžité dodatečné spláchnutí
  • přípojka vody vzadu nebo nahoře uprostřed
  • vybaven trubkovou chráničkou pro přívodní potrubí k připojení sprchovacích WC Geberit AquaClean
  • s možností upevnění pro přívod elektřiny

Technické informace

  • tlak při průtoku: 10-1000 kPa
  • maximální teplota vody: 25 °C
  • splachovací množství, nastavení ve výrobě: 6 a 3 l
  • velké splachovací množství, rozsah nastavení: 4 / 4.5 / 6 / 7.5 l
  • malé splachovací množství, rozsah nastavení: 2-4 l
  • výpočtový průtok: 0.09 l/s
  • minimální přetlak pro výpočtový průtok: 10 kPa

Rozsah dodávky

  • přívod vody R 1/2", vhodný pro MF, s integrovaným rohovým ventilem a ručním ovládacím kolečkem
  • kryt pro hrubou montáž pro servisní otvor
  • připojovací souprava pro WC, Ø 90 mm
  • připojovací koleno 90° z PE-HD, Ø 90 mm
  • přechodka z PE-HD, Ø 90 / 110 mm
  • 2x distanční šrouby
  • 2x nástěnné kotvy
  • upevňovací materiál

Diskuse k produktu

Napište vlastní dotaz nebo komentář »

Ke zboží „Geberit Duofix Předstěnová instalace pro závěsné WC, výška 1,12 m ještě nikdo nenapsal komentář. Buďte první!